Gewerbeimmobilien:

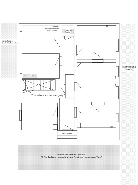
Vermietet: Trier-Maximinstraße - Büroeinheit im Erdgeschoss mit 3 überdachten Stellplätzen

Zur Vermietung ab sofort kommt eine repräsentative Gewerbeeinheit in zentraler Innenstadtlage (Maximinstraße) - Fußweg 2 Minuten zur Porta Nigra.

 

Details:

  • Nutzfläche: ca. 100 qm
  • Ebenen: 1
  • Räume: 6
  • Zwei Eingangsbereiche
  • 1 Kellerraum
  • Parkett
  • Sehr gut geeignet für Rechtsanwälte, Architekten, Unternehmensberatung o.ä.
  • Vermietung: ab sofort
  • Mietpreis: 735 EUR + 200 EUR Nk inkl. Heizkosten zzgl. Umsatzsteuer
  • 3 überdachte Stellplätze im Mietpreis enthalten inkl. elektr. Rolltor
  • Nicht für Gastrononmie geeignet
  • Kaution: 2.000 EUR

 

Der ersichtliche Grundriss ist lediglich zur Erstorientierung geeignet - nicht als Grundlage zur Flächenberechnung.

 

Die Angaben beruhen vollständig auf den Informationen der Vermieter.

Eine Gewähr für die Richtigkeit wird nicht übernommen.

Der Mieter ist gegenüber der Fa. TRIDOMUS Immobilien e.K. zur Zahlung einer Provision in Höhe von 2 Monatsmieten zzgl. MwSt. = 1.749,30 EUR verpflichtet.

 

"PETRISBERG - Am Wasserband" - Repräsentative Gewerberäume

 
Exklusive Gewerbeimmobilie

Zur Vermietung ab sofort kommt eine exklusive und repräsentative Gewerbeeinheit auf zwei Ebenen mit großem Balkon (40qm).

 

Details:

  • Nutzfläche: ca. 120 qm
  • Hochwertiger Balkon/Terrasse: ca. 40 qm
  • Ebenen: 2
  • Räume: 3-4
  • Eigener Eingangsbereich
  • Bürogemeinschaft (2) möglich
  • z.B. sehr gut geeignet für Rechtsanwälte, Architekten pp.
  • Baujahr: 2006
  • Gewerbeerstbezug
  • Niedrige Energiekosten durch Wärmepumpe
  • Hochexklusives Umfeld
  • Sozialraum mit neuer, hochwertiger Einnbauküche (weiß)
  • Vermietung: ab 01.09.2011
  • Mietpreis: 1.200 EUR zzgl. MwSt. zzgl. NK
  • Kaution: 3 Monatsmieten

 

Die Angaben beruhen vollständig auf den Informationen der Vermieter.

Eine Gewähr für die Richtigkeit wird nicht übernommen.

Der Mieter ist gegenüber der Fa. TRIDOMUS Immobilien zur Zahlung einer Provision in Höhe von 2 Monatsmieten zzgl. MwSt. verpflichtet.

 

 

 

 

 

 

 

 

Wunsch-Immobilie nicht gefunden? Wir helfen Ihnen gerne weiter:

Ihre Formularnachricht wurde erfolgreich versendet.
Sie haben folgende Daten eingegeben:



Bitte korrigieren Sie Ihre Eingaben in den folgenden Feldern:
Beim Versenden des Formulars ist ein Fehler aufgetreten. Bitte versuchen Sie es später noch einmal.

Hinweis: Felder, die mit * bezeichnet sind, sind Pflichtfelder.